Immeubles d’habitations et commerces
Ilot du Léman
Maître de l’ouvrage : CPCV
Réalisation : 2018 – 2021
Lieu : Martigny
Photographe : Claude Dussez & Christophe Voisin

En collaboration avec Game Sàrl

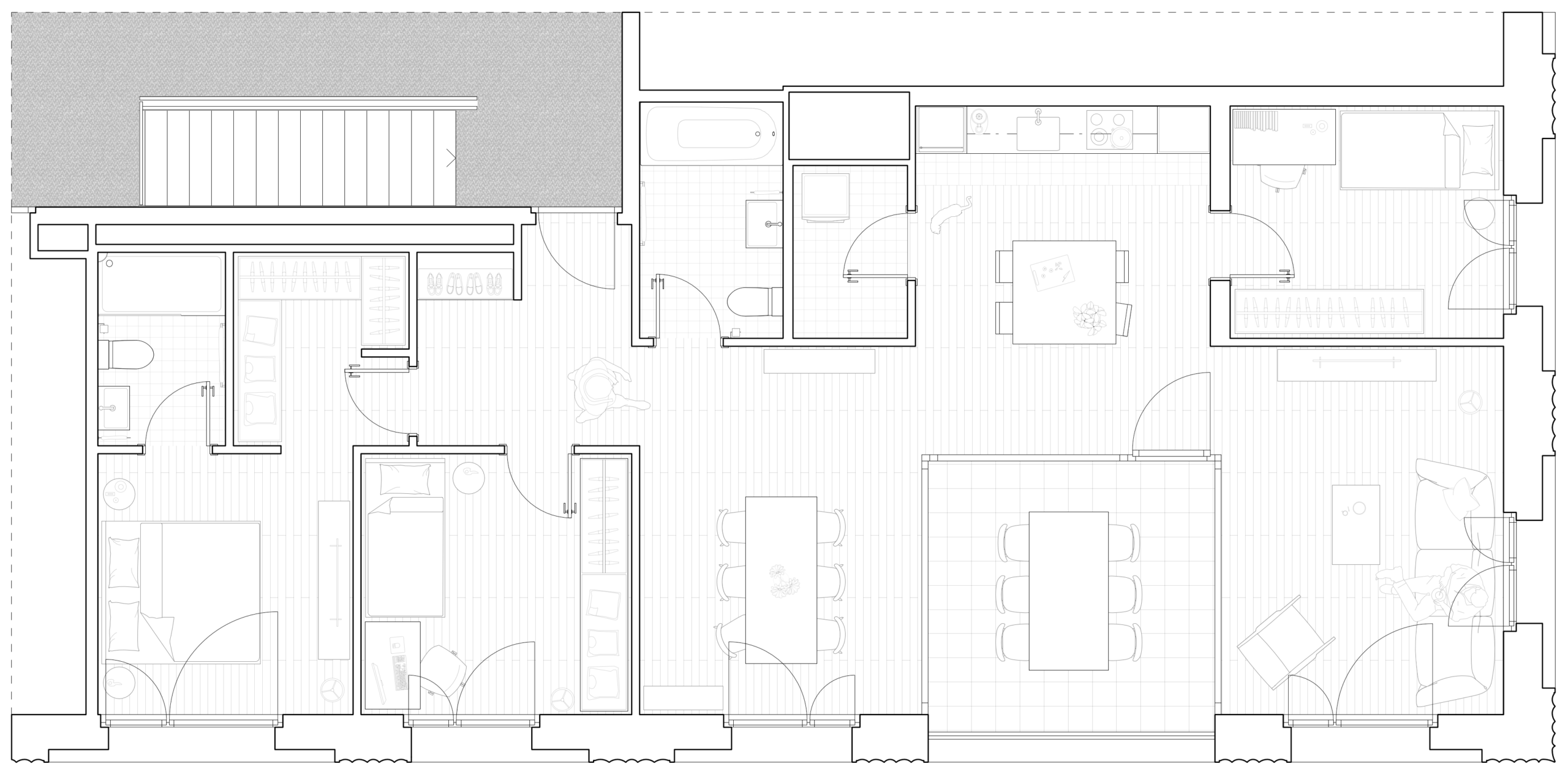
Etage +2

B202

A707

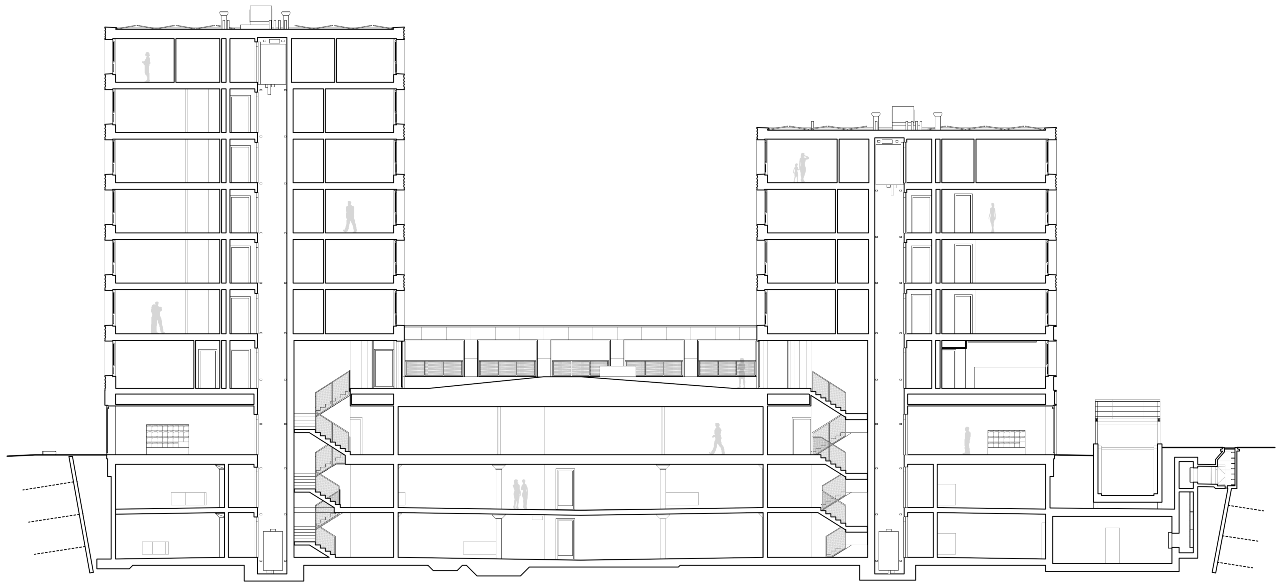
Coupe

Façade

Rue des Alpes 1
CH – 1920 Martigny
+41 27 722 31 16
info@thomas-coquoz.ch
CHE – 108.063.619
Proudly powered by WordPress
pour enregistrer vos maisons préférées et plus encore
Vous n'avez pas de compte ? S'inscrire
Entrez votre adresse e-mail et nous vous enverrons un lien pour changer votre mot de passe.
pour enregistrer vos maisons préférées et plus encore