Villa individuelle
Rénovation intérieure
Maître de l’ouvrage : Privé
Réalisation : 2022 – 2025
Lieu : Saillon

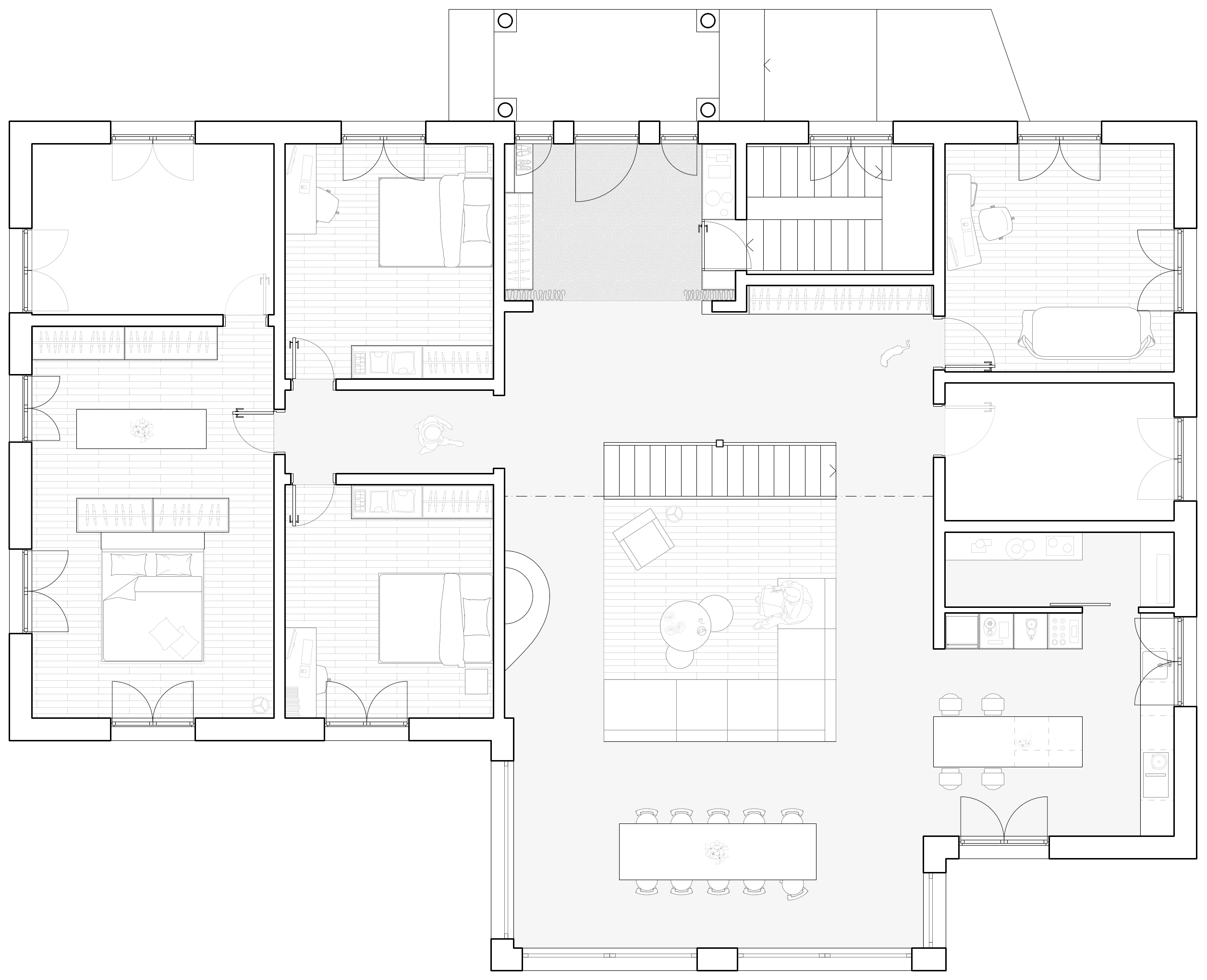
Rez-de-chaussée

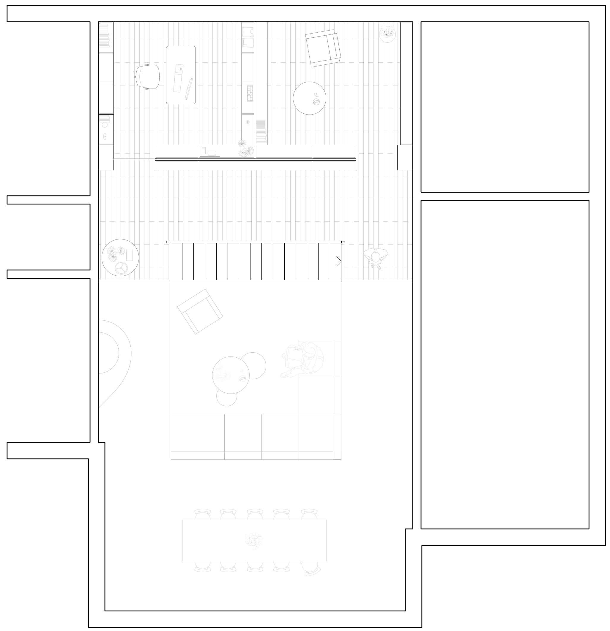
Etage +1

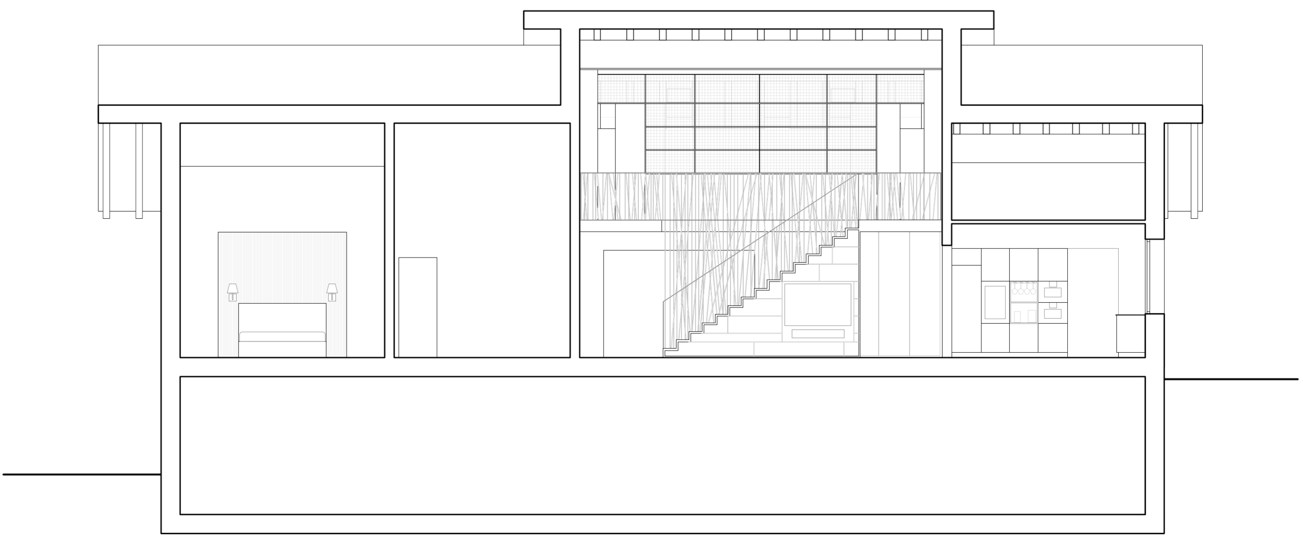
Coupe

Rue des Alpes 1
CH – 1920 Martigny
+41 27 722 31 16
info@thomas-coquoz.ch
CHE – 108.063.619
Proudly powered by WordPress