Villa individuelle
Rénovation
Maître de l’ouvrage : Privé
Réalisation : 2011
Lieu : Martigny

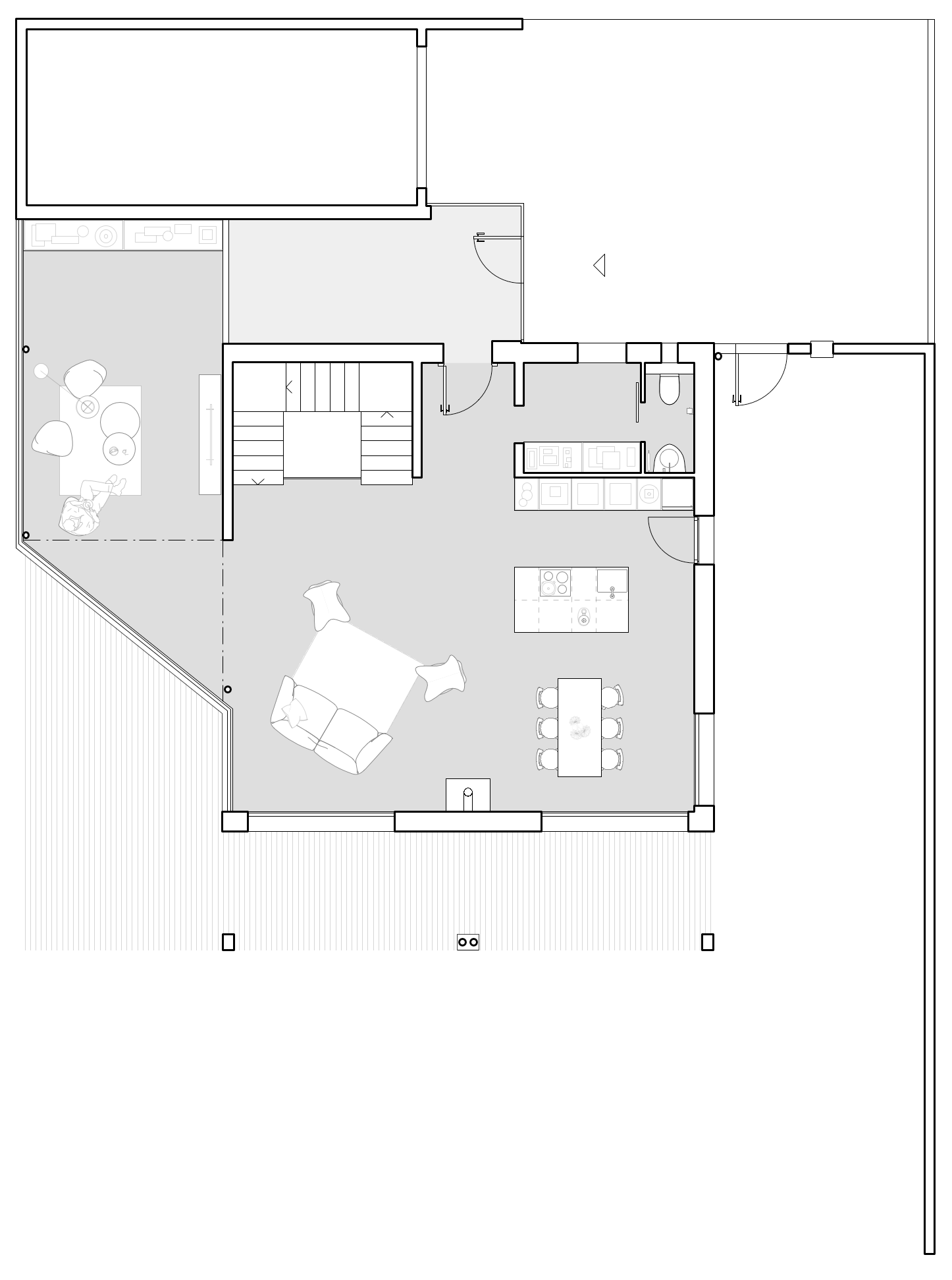
Rez-de-chaussée

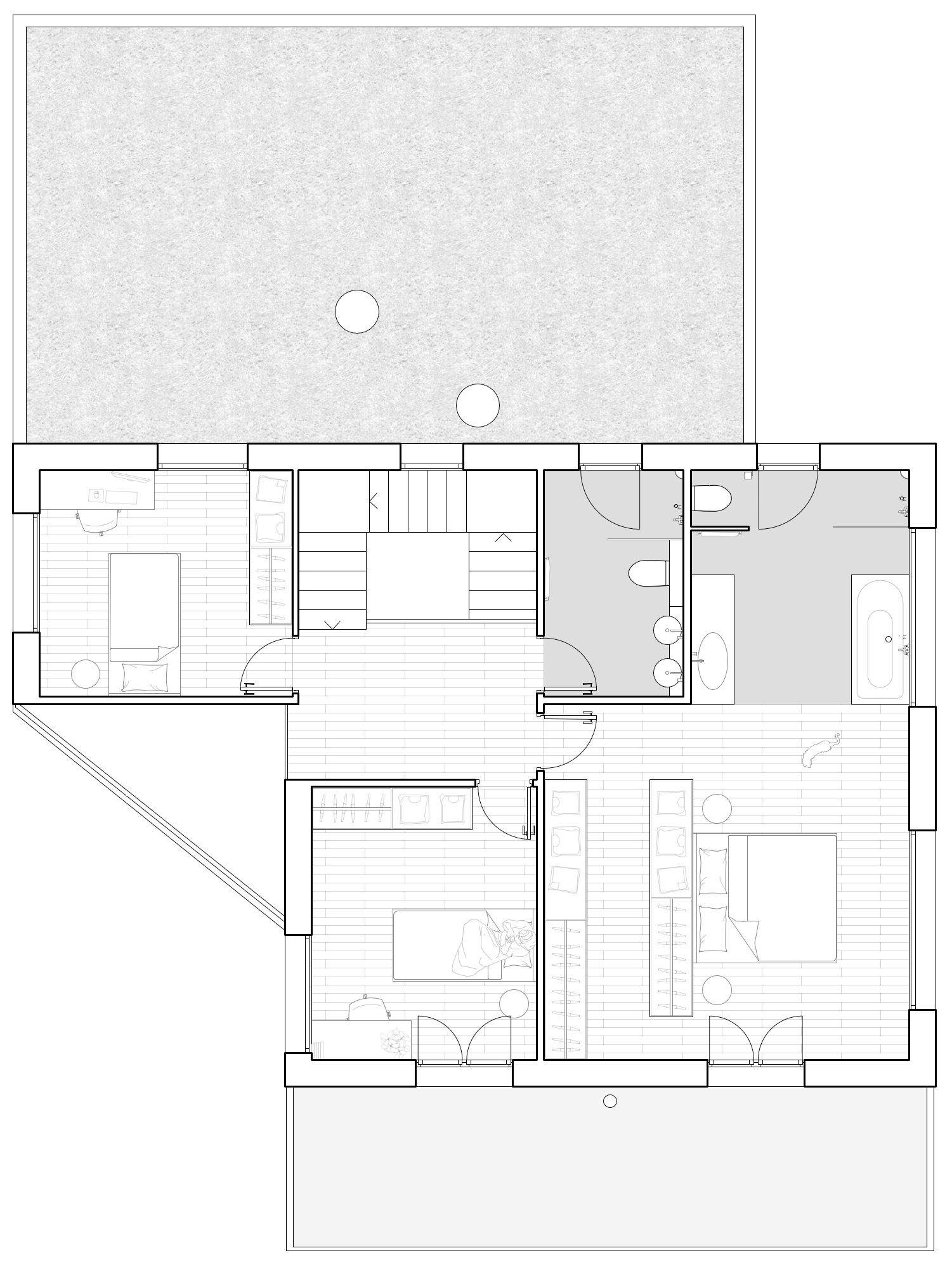
Etage +1

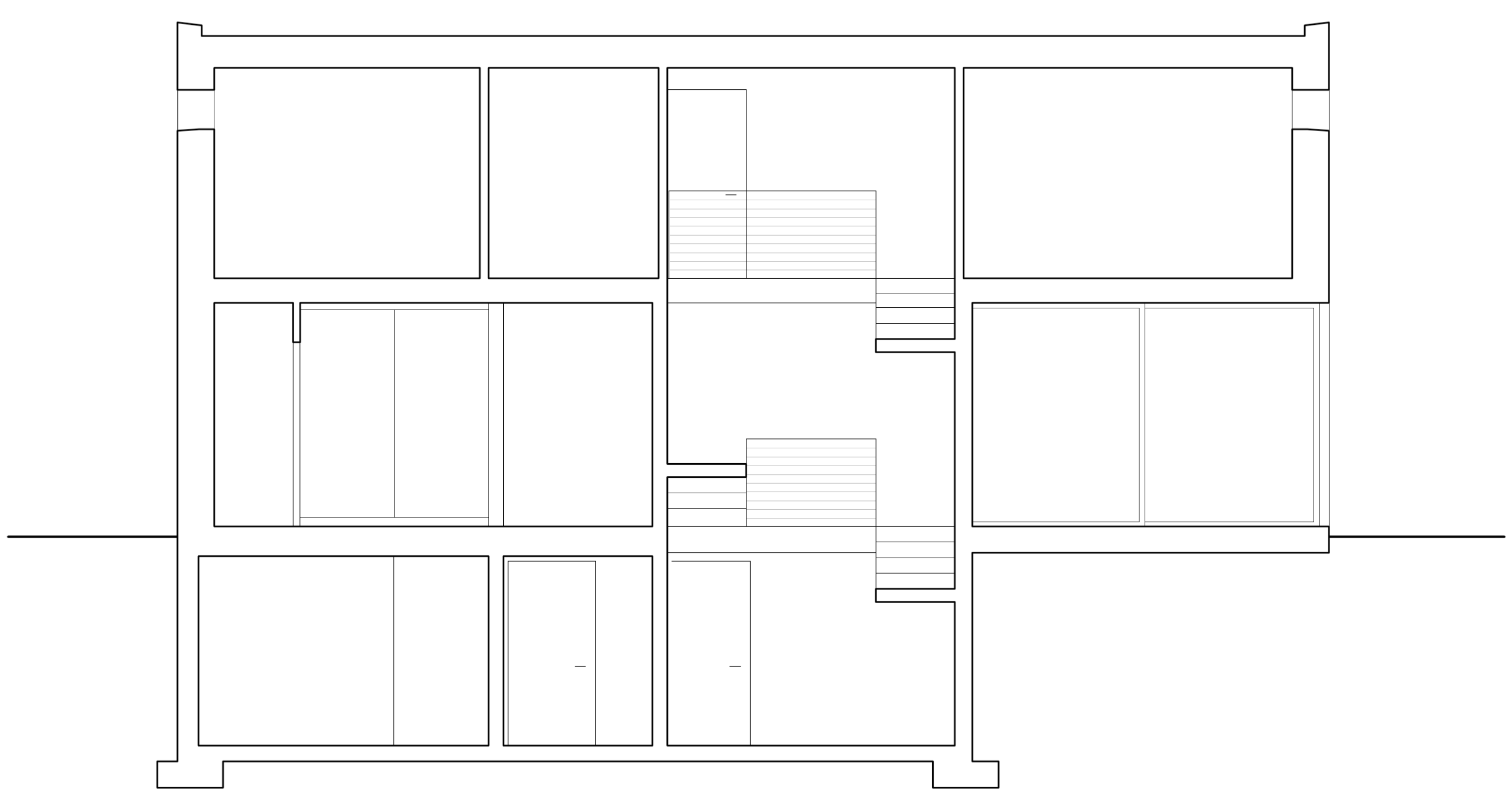
Coupe

Façade

Façade

Rue des Alpes 1
CH – 1920 Martigny
+41 27 722 31 16
info@thomas-coquoz.ch
CHE – 108.063.619
Proudly powered by WordPress