Maison d’habitation
Rénovation
Maître de l’ouvrage : Privé
Réalisation : 2013
Lieu : Miéville

Rez-de-chaussée

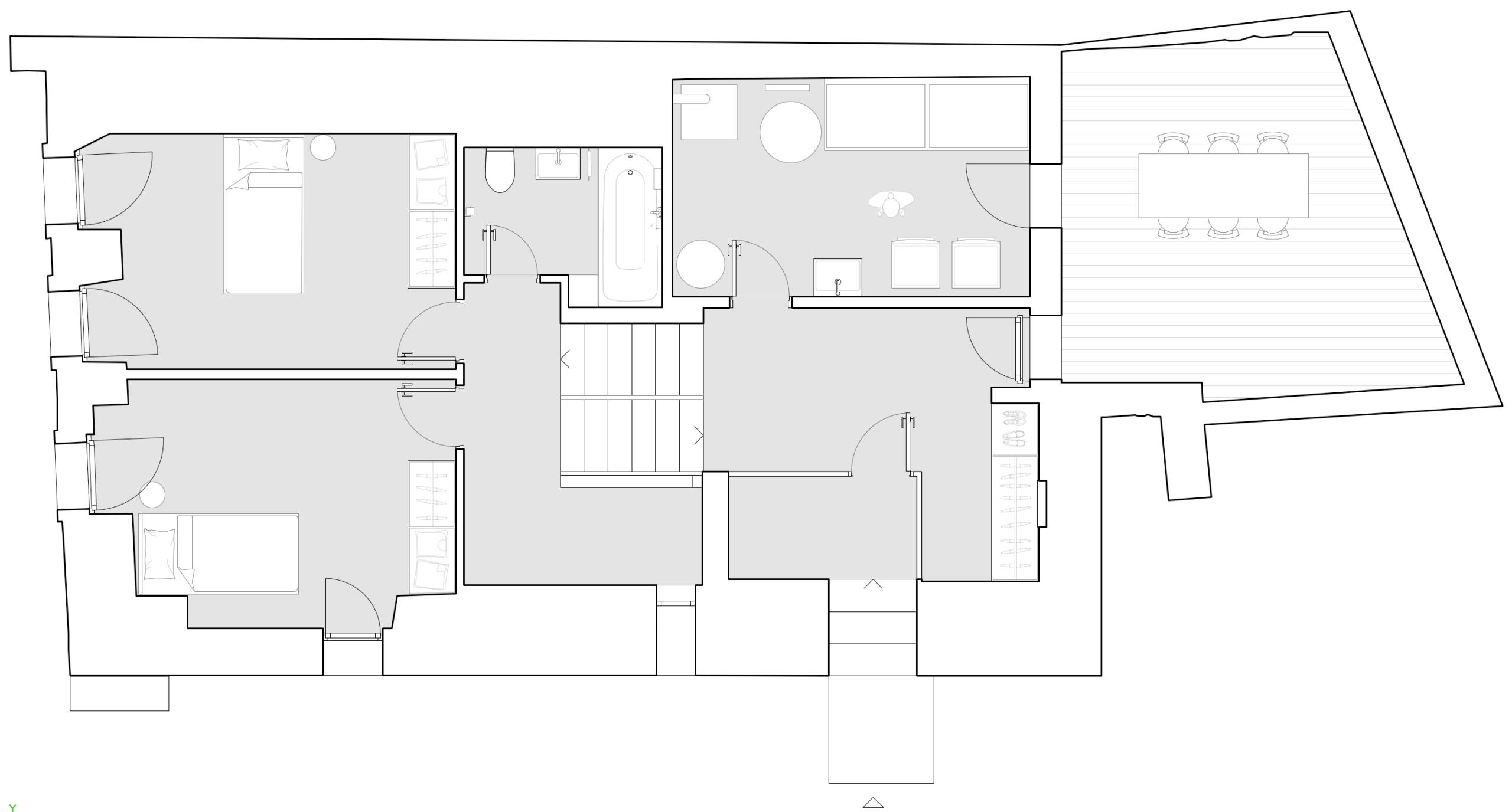
Etage +1

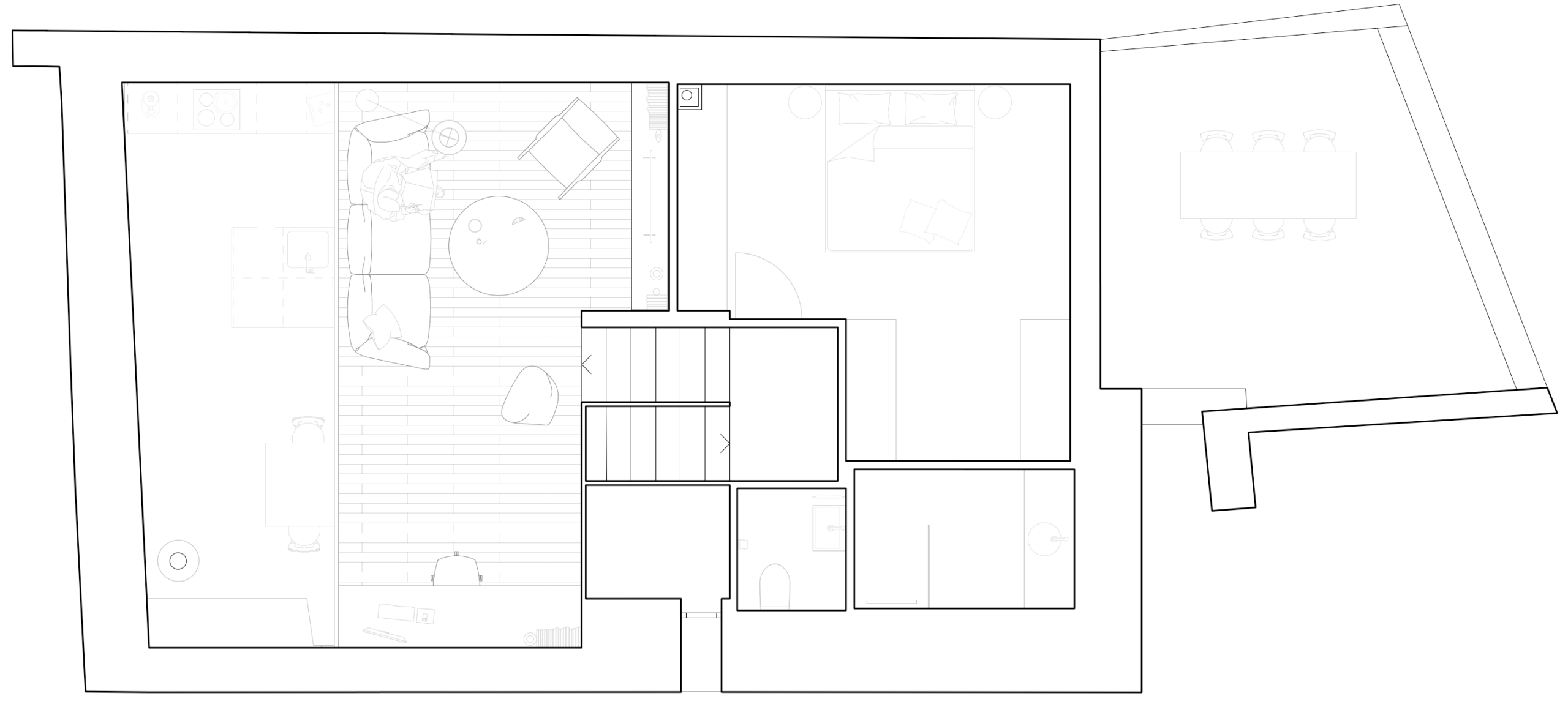
Etage +2

Coupe

Façade

Façade

Rue des Alpes 1
CH – 1920 Martigny
+41 27 722 31 16
info@thomas-coquoz.ch
CHE – 108.063.619
Proudly powered by WordPress